Tommy Hilfiger puts his penthouse at The Plaza on the market (again)
Tommy Hilfiger tried to sell his New York penthouse for £55.6 million ($80 million, €70.6 million) in 2013 and having failed then has now relisted it.


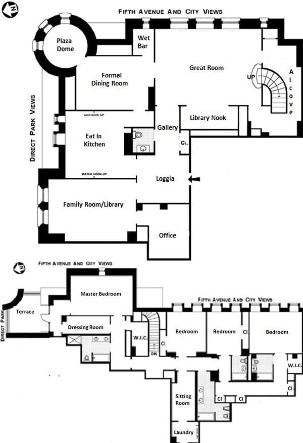
Offered by Marie-Claire Gladstone of Corcoran, the 5,655 square foot condominium – known as ‘The Dome Penthouse’ or more simply, ‘Apartment 1809’ – is situated on the 18th and 19th floors of The Plaza Hotel at One Central Park South. It has amongst other things a “great room”, a formal dining room with a “wet bar”, a “tea room with murals”, four bedrooms and a terrace overlooking Central Park and Fifth Avenue. Hotel amenities are provided in the form of maid service, valet parking and room service from the Todd English restaurant.









Hilfiger is said to be selling as he no longer spends much time in New York according to The Washington Post and any aspiring Eloise will have to stump up the £47.9 million ($68.95 million, €60.9 million) listing price sought as well as £6,040 per month ($8,695 €7,673) for taxes and another £5,834 per month ($8,398, €7,415) for maintenance fees. A sale at this level will represent a great return as Mr Hilfiger and his wife, Dee Ocleppo, paid just £17.2 million ($25 million, €22 million) for the property in 2008.
Subscribe to our free once daily email newsletter here:









How does it work with an apartment in a hotel, is the property itself freehold or leasehold? Strange way of living but I suppose for some people it makes sense.
I didn’t take note of the owner, good old Tommy, it’s amazing how much money you can make by flogging crap clothes.
The real question is this. If Mr R Lauren was born Mr Lifshitz what was Mr Hilfiger born as.
Ralph often talks about how he sells ‘dreams, not fabric’, but I very much doubt that he could do that as Mr Lifshitz.
How do Americans get away with talking such utter bollocks.