Vast Knightsbridge penthouse for sale for 27% less than in 2012 but extraordinarily 6,900% more than in 1999
Constructed between 1961 and 1962 by builders Gilbert Ash, Collier House is not the most attractive structure in Knightsbridge externally. Whilst retailers Reiss and Nespresso – lucky residents get George Clooney’s ugly ‘mug’ stuck on the façade as a bonus (excuse the pun) – occupy the ground floor, the top floor ‘space’ was sold for the creation of a two-storey penthouse in 1999 for £230,000.


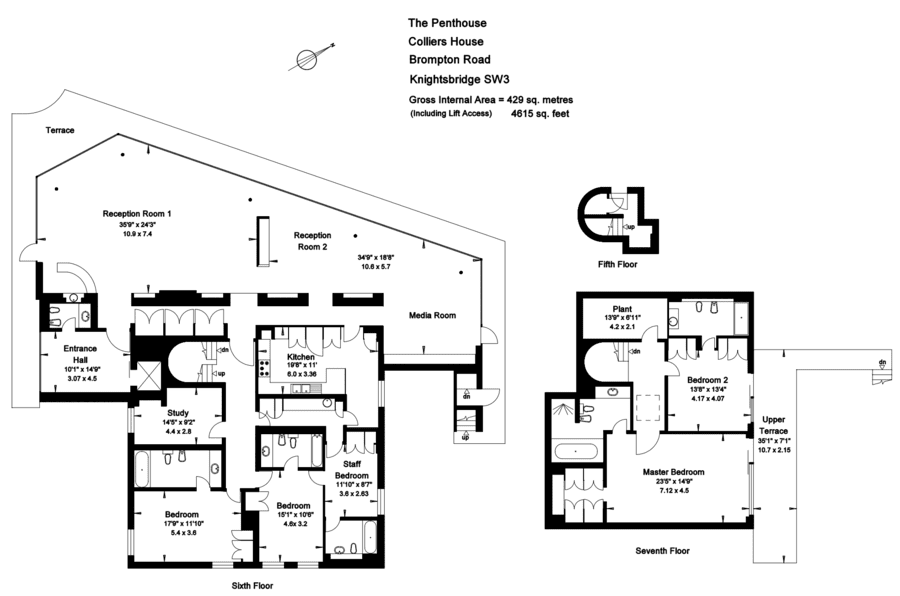
Developed to provide a 4,615 square foot duplex over two floors, the apartment is currently on the market for the considerably higher figure of £16 million through agents Merchants Row. It includes 2 reception rooms that are some 70-foot in length in total, a bar area, a media room, 5 bedrooms and 5 bathrooms and comes with wrap-around terraces with skyline views towards Harrods and the Brompton Oratory.
From October 2014 to July 2019, the penthouse was the registered office of Elaph Publishing Limited. Founded in 2001 by Othman Al Omeir – a man “considered close to King Salman of Saudi Arabia” – Elaph is described as “the first daily Arabic independent online newspaper.” It has at various times been banned in both Saudi Arabia and Yemen and its former managing director was the EMMY award winning producer Nicholas Claxton.
The long leasehold penthouse, which was offered for the even more outrageous sum of £22 million in November 2012, has direct lift access to the sixth floor and comes with secure underground parking. It is subject to a service charge of £10,800 per year, has been offered to rent for £10,000 per week previously and what the agents neglect to mention is that it is situated directly above one of London’s most polluted stretches of road.
The Numbers – Collier House, 163 – 169 Brompton Road, Knightsbridge, London, SW3 1PY, United Kingdom
April 2020 – For sale for £16 million ($20 million, €18.4 million or درهم73.4 million) through agents Merchants Row.
November 2012 – For sale for £22 million ($27.5 million, €25.3 million or درهم101 million) through agents Wilfords.
July 1999 – “As then was” space for penthouse sold for £230,000 ($287,000, €264,000 or درهم1.1 million) according to Land Registry records.
Facebook: @TheSteepleTimes
Instagram: @TheSteepleTimes
Twitter: @SteepleTimes























Who on earth would want to live there? The decoration is lacking in soul and style and the pollution is the kicker. No thanks, not even at half the price.
Totally agree with Eric Anderson, Roger and Celine. Soulless. But it’s all glass-with-no-class so our Aussie, Rodders, will probably like it.
Stay safe and well, everyone, and wash your ruddy hands.
£16 million for a blank canvas next to a polluted road. Seems a bit pricey.
Good entertaining space but not much else going for it. No character at all.
Perfect for an Arab with no taste but who else would want to live in this very ugly building that looks like a council block?
I lived across the street from 2005 – 2019 and it was only very rarely inhabited. It’s a convenient location with borderline intolerable noise/pollution levels!
I actually like it, bright, airy, loads of space. I wouldn’t say no.
Wrecking ball for once NOT required!!!!!!!!! Beautiful, beautiful……… More like this……… Great taste, great taste.
It makes me sick that someone would spend this much on such a horror
LOVELY FOR A FAMILY JUST PERFECT,
Or even so for a good entertainer singer like my self, hopefully if not sold, may go for it soon as and when i am ready,
BY The Way, TO THE CONTRARY IT IS VERY QUIET UP THERE
SHOULD BE RELEASING MY NEW SINGLE SOON ,
MAY HIT THE BIG TIME
SALMAN