Steeply-pitched, unused mansard roof space in Manhattan heads to a slashed no reserve auction after failing to sell for £30.3 million
A currently unused roof space with an existing apartment overlooking Central Park that has bopped on and off the market since 2013 is being placed in a no reserve online auction early next month. It follows on from the fire sale of another ritzy penthouse we featured in June this year that went on the market for 64% lower than it sold for in 2014.
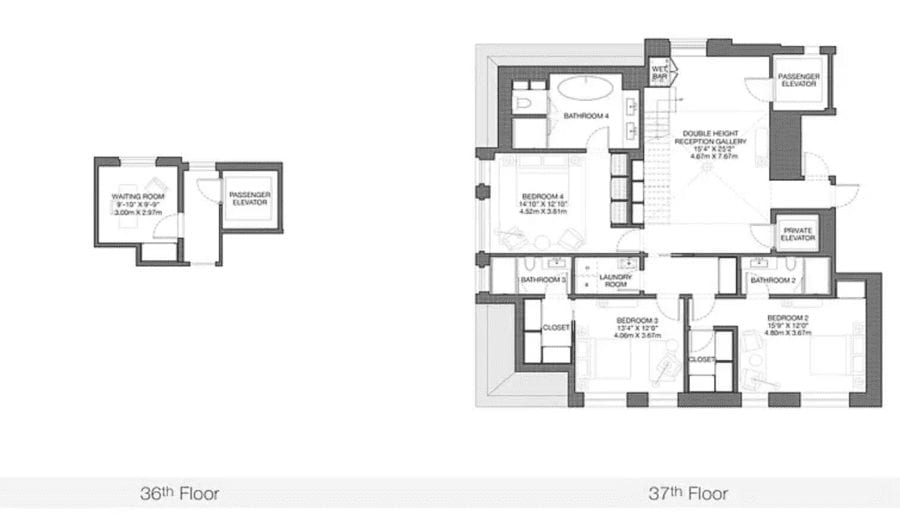
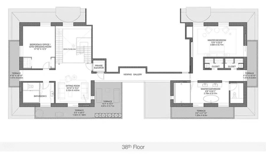
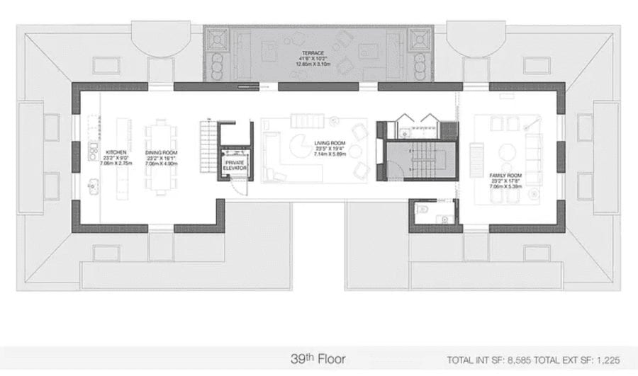
Featuring the existing 37th floor unit and having “pre-approved, shovel ready design, plans and permits” to extend into what was home to the mechanical systems of Hampshire House (alternatively known as ‘150 Central Park South), the potential triplex penthouse on offer could extend to 9,650 square foot.
Offered initially in 2013 for £12.7 million, the development opportunity was bought by a London based Israeli developer and artist named Arnon Katz in 2014 and 2015 for a combined total said to be £16.6 million. He attempted to sell it on for £18.9 million in June 2018 and then increased the ask to a staggering £30.3 million more recently.
Speaking of the 5-bedroom, 5.5-bathroom scheme – which also includes a “grand salon, formal living and dining rooms and an eat-in kitchen” – Katz remarked:
“Years of passion and knowledge went into the planning, design, and obtaining of the permits necessary to offer this extraordinary offering.”
“There is absolutely nothing else like it in the world, and this is what makes it truly special. I’m confident that Concierge Auctions’ incredible global reach and a team of top talent will identify the perfect buyer, an individual as unique as this property itself, who not only understands the value, but who also has the vision to complete this magnificent penthouse to its reality.”
The Concierge Auctions online sale commences on 18th December and closes on 22nd December and if sold, the buyer will get to live in a building dating to 1931 which has counted the artist Frida Kahlo and the tenor Luciano Pavarotti amongst its former occupants.
The Names & Numbers – The Penthouse, Hampshire House, 150 Central Park South, Manhattan, New York, NY 10019, United States of America
November 2020 – The roof space is to be offered for auction with “no reserve to the highest bidder” by Concierge Auctions against a previous price of £30.3 million ($40 million, €33.8 million or درهم146.9 million). The online auction commences on the 18th December and closes on 22nd December 2020.
According to a press release from Concierge Auctions, the penthouse is “appraised at £75.6 million ($100 million, €84.4 million or درهم367.3million) on completion” and finish costs are estimated at upto £15.1 million ($20 million, €16.9 million or درهم73.5 million).
Anticipated annual costs are described as “unusually low” and estimated at £45,400 per year ($60,000, €50,600 or درهم220,400 per year) to include taxes and co-op fees.
June 2018 – The roof space is offered for sale by Douglas Elliman for £18.9 million ($25 million, €21.1 million or درهم91.8 million) according to Mansion Global.
2014 to 2015 – UK based artist and real estate investor Arnon Katz purchased the 1,800 square foot penthouse of Hampshire House as well as the rights to develop the two floors of roof space above it. According to Forbes, he paid £16.6 million ($22 million, €18.6 million or درهم80.8 million) in total – of which, surprisingly, just £3 million ($4 million, €3.4 million or درهم14.7 million) was for the 37th floor space according to Mansion Global.
January 2013 – Listed for sale for £12.7 million ($16.9 million, €14.2 million or درهم62.1 million) according to Zillow.
Facebook: @TheSteepleTimes
Instagram: @TheSteepleTimes
Twitter: @SteepleTimes























It’s not a family home, is it? Most peculiar design. Interesting to find out who buys – maybe UHNW oligarch who desperately needs a 5th home.