Derelict Grade II* listed Gothic revival chapel in South Kensington for sale for the extraordinary sum of £7.5 million; it cost just £1,613 to build
The purchaser of a home that will be created from a derelict chapel hidden in South Kensington will not only have to find some £7.5 million to buy it, but also will have to fork out £500,000 to relocate the existing pews and organ to a church in Hammersmith.
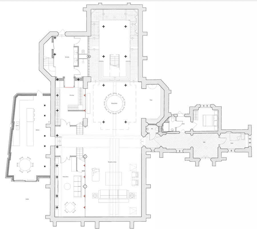
With plans in place to increase the former St Luke’s Chapel in the grounds of The Bromptons development off Fulham Road in size from 4,257 square foot to 7,330 square foot and a development team selected, agents Russell Simpson describe what could be created as “an opportunity to build a home with unique character and a bright and spacious interior.” The detached house that will result will have 82 new roof lights and as well as a vaulted living room with a library above, snug, conservatory, kitchen and 4 bedroom suites, “consideration has been given to this property as an exceptional space for an art lover with an incredible backdrop for pieces.”
The resulting residence will be subject to an annual service charge of £70,500 and will come with two secure underground car parking spaces and access to all the facilities of The Bromptons. They include 24-hour concierge service, an indoor swimming pool complex and manicured gardens. Access to Onslow Gardens to the rear may also be available but is not guaranteed.
Justifying their expected value of “in excess of £25 million when complete,” the sellers – back in 2017 – cited how house prices in the Royal Borough had “risen 90% in the past 10 years” and claimed “growth in the London market [is] expected to return in 2019… despite recent Brexit uncertainty.” Given prices in the Royal Borough have declined 10% in the last year, how wrong they plainly were. No doubt they’ll now be praying to God for a miracle.
St Luke’s Chapel, Rose Square, The Bromptons, South Kensington, London, SW3 6RS – The Numbers
Estimated value on completion (in 2017) – “In excess of £25 million” ($31.3 million, €27.9 million or درهم114.8 million) according to the selling agent. Equivalent to £3,411 per square foot ($4,265, €3,801 or درهم15,662 per square foot).
July 2019 – ‘All in’ guide for development costs estimated at £5.195 million ($6.495 million, €5.788 million or درهم23.854 million).
July 2019 – Relaunched at £7.5 million ($9.4 million, €8.4 million or درهم34.4 million) by Russell Simpson and Strutt & Parker on a 999 year lease with the freehold being available on completion of the project.
2017 – Initially offered for £9.5 million ($11.9 million, €10.6 million or درهم43.6 million).
1849 – 1850 – Built by Hopkins and Roberts of Islington at a cost of £1,613 or the equivalent of £201,000 ($251,000, €223,000 or درهم921,000).
Facebook: @TheSteepleTimes
Instagram: @TheSteepleTimes
Twitter: @SteepleTimes


















What a dump!!!!!!!!!!!!!!!!!! Wrecking ball urgently required!!!!!!!!!!!!!!!!!!!!!! Pull it down now!!!!!!!!!!!!!!!!!!!!!
It will be very dark. That is the limitation but the space would be great for parties.
Felix…great minds think alike. I was thinking the little chapel could be used for small, pretentious piano recitals and concerts. Or, even more pretentious, a meeting room for local residents about local issues, like how the district is going to rack and ruin. I’d buy it in a heartbeat if I had the money to buy and renovate.
Philistine!